Pesquisa de Imóveis

Moradia com Projeto Aprovado | S. Clemente | Loulé

260.000€


Partilhar


Referência

MO 531

Natureza

Venda

Tipo de Imóvel

Moradia

Subtipo de Imóvel

Moradia em Banda

Tipologia

T2+1

Estado

Usado

Certificado energético

Isento

Distrito

Faro

Concelho

Loulé

Freguesia

Loulé (São Clemente)

Código Postal

8100

Área Útil

128.73 m2

Área Bruta

145.5 m2

Área de Terreno

108.1 m2



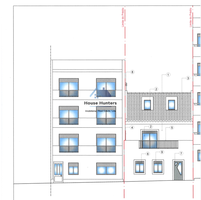
Moradia com Projeto Aprovado | S. Clemente | Loulé 

PROPRIEDADE APTA PARA FINANCIAMENTO BANCÁRIO + OBRAS
Moradia de três pisos, com 2 quartos + 1 escritório e quintal, com projeto aprovado inserida dentro da cidade de Loulé, podendo estacionar em frente à moradia.

Dado que se encontra localizada dentro da cidade, tem todas as facilidades de comércio e serviços a curta distância.

O projeto Contempla:
Moradia de Rés-do-chão, 1º. Andar e 2º. Andar e Quintal

No rés-do-chão podemos encontrar:
•Sala de estar e jantar
•Cozinha
•Despensa
•Quarto em suite com roupeiro embutido
•WC
•Lavandaria
•Quintal 24 m2

No 1º Andar podemos encontrar:
•1 Quarto com roupeiro embutido
•1 Casa de banho de serviço
•1 Escritório 
•1 Varanda 17 m2

No 2º andar podemos encontrar:
•1 Sótão amplo, onde se poderá fazer um quarto e um escritório ou dar qualquer outra finalidade ao mesmo.


Distâncias:
•900 m até ao centro da cidade e serviços
•13 km até Praia de Quarteira e Vilamoura
•16 km até ao Aeroporto Internacional de Faro


Características:  

•Água da rede e eletricidade e esgotos
•2 Frente
•Exposição a Nascente e Poente
• Quintal
•Muita luminosidade 

Na House Hunters temos ao dispor APOIO NO PROCESSO DE FINANCIAMENTO (se necessário).

A nossa agência tem um Intermediário de Crédito Autorizado pelo Banco de Portugal. CASO NECESSITE DE FINANCIAMENTO PODEMOS AJUDAR.

Partilhamos negócios com todos os consultores imobiliários ou agência com licença AMI porque juntos conseguimos fazer mais pelos nossos clientes. Se é profissional do sector e tem um cliente qualificado, contacte-me e agende a visita.
Para obter mais informações ou marcar uma visita, por favor contacte-nos.
Geral
Exposição SolarNascente:Sim
Exposição SolarPoente:Sim
Luz NaturalMuito Iluminado:Sim
InfraestruturasEsgotos:Sim
GeraisNº de Casas de Banho:2
Edificio
GeraisNº de Frentes :2
GeraisNº de Varandas:1
ÁguaCompanhia:Sim
Zona
CentralidadeCentro da cidade:Sim
ProximidadeBancos:Sim
ProximidadeBombeiros:Sim
ProximidadeClínicas:Sim
ProximidadeEscolas:Sim
ProximidadeFarmácias:Sim
ProximidadeGinásios:Sim
ProximidadeHospitais:Sim
ProximidadeJardins:Sim
ProximidadeJardins de infância:Sim
ProximidadePadarias:Sim
ProximidadePolícia:Sim
ProximidadeServiços públicos:Sim
ProximidadeSupermercados:Sim
AcessosAlcatrão:Sim
AcessosCalçada:Sim

Este imóvel não tem áreas definidas.

Contactar Imobiliária

*Preenchimento obrigatório
Ao clicar em 'Enviar', declara que aceita a nossa Política de Privacidade.


Imóveis
Semelhantes

Moradia T2 com 37000 m2 | Querença | Loulé

Faro, Loulé, Querença, Tôr e Benafim

399.000€

Ref: MO 530

Ref: MO 530

156 m2

2

1

Sim

Ruina em Cerro do Passarinho | Tôr Querença

Faro, Loulé, Querença, Tôr e Benafim

127.500€

Ref: MO 513

Ref: MO 513

73 m2

3

1

VENDIDO

Moradia T2 com Quintal | Alte | Loulé

Faro, Loulé, Alte

Preço sob consulta

Ref: MO 492

Ref: MO 492

50 m2

2

Isento